Skip to content
george tătulea arhitect
arhitectura / urbanism / design / concept / proiectare / consultanta
Toggle Sidebar
26/08/2011
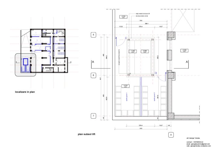
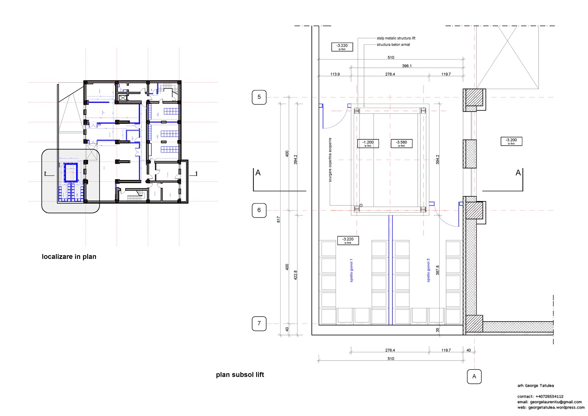
detalii 03
Leave a comment
Cancel reply
Δ
This site uses Akismet to reduce spam.
Learn how your comment data is processed.
Post navigation
←
clinica de dializa
Menu
arhitectura
cabana Schiori C1
Macedonski C2
Centru Batrani Peris
Reconversie T18
pensiune maramures 3
pensiune maramures 1
pensiune maramures 2
bloc S+P+4E+5Er
ansamblu rezidential V
sala sport sector 2
structuri metalice
locuinte blanari
clinica de dializa
clinica de dializa fresenius, jiului, bucuresti
locuinte colective 2
locuinte colective
restaurare-mansardare Titus 24
mansardare Giulesti
urbanism
analiza macedonski
analiza Polona
analiza Gara de Nord
analiza Pache
analiza Doamna Ghica
analiza Matei Basarab
pud Viitorului
analiza Viitorului
analiza Colentina
analiza Traian
analiza parcul National
analiza Berzei
analiza Dacia-Toamnei
analiza parcul Operei
comercial
statie Forte Gas
statie Rompetrol R3
PilotShop
statie C3
statie C1
statie Maramures M
statie Rompetrol R2
cafenea HEI 2
cafenea HEI 1
statie NORD
statie Rompetrol P
statie REFILL
concept floraria FL 1
concept floraria FL 2
statie Rompetrol C
concept CLAUS final
concept CLAUS
concept AZALIS final
concept AZALIS no3
concept AZALIS no2
concept AZALIS no1
expocasa 14
concept cafenea _3
concept cafenea _2
concept cafenea _1
concept SOCAR
omv arad
concept fitness club
design spatii OMV
locuinte
casa K4
casa K3
casa L 3
casa SV1
casa SV2
casa AMV 9
casa AMV 5
casa C4-2
casa C432
casa L 7 parter
casa L 4 p+m
casa L 3 p+m
casa S1
casa OL 2
casa B
casa O v1
casa B1
casa stf 1
casa 28
casa V 1
casa A1
casa AF3
casa de vacanta
casa EX
casa S
studii si concepte
imobil S+P+4
locuinte concept 1. s+p+5
concept SOCAR
timpuri noi tower
camin pentru batrani
studiu de fezabilitate spital
studiu unitati cazare centru batrani
studiu reamenajare parc
studiu de trafic
office
THALES interior concept
THALES concept OT
THALES concept TB
MS Large Meeting
Microsoft City-Gate
Microsoft Timisoara
Microsoft Tudor
MS GLW Cafeteria
MS GLW Reception
MS GLW Office
MS game room
MS GLW Office Concept
D33 Office
Lobby Design S
Microsoft Office E12
MS Office Concept 7
GM office concept
MS Office Concept 3
office meeting lounge
QT6 Office
QT13 Office
mozipo office 2
MZ office
birou mic R1
sea vulcan office
Tchibo office HQ
office fit sol
aviatorilor
UFX markets
E 2 Office
office design AG
buzesti office E2
buzesti office E11
fresenius HQ
interioare
amenajare Cm2
amenajare Cm1
amenajare P77 – 1
interior L 7
interior L 4
amenajare interior P+1
amenajare cafenea – V1
amenajare apartament L
apartament EB1-1
apartament EB1-2
apartament EB1-3
apartament EB2-3
apartament EB4-3
apartament EB6-1
apartament EB6-2
amenajare mansarda SD
LOFT in franta – extindere
mansarda copil A2
apartament AC
apartament ID 1
apartament ID 3
amenajare living – bucatarie
amenajare living V 1
bucatarie – living casa A1
living casa AF3
exterioare
design pergole
design fatada
pavilion parc
design parcaj auto
modificari fatada
concept terasa acoperita
amenajare terasa apartament
design
lounge si terasa
lounge si terasa V2
design baie B1
design baie B2
iluminat dinning-living
design bucatarie
design bucatarie – dinning
design dressing
design baie
design baie mica
baie matrimoniala
design bucatarie B
design bucatarie deschisa V1
design bucatarie deschisa V2
design parter locuinta
mobilier
design birou clasic
mobilier farmacie
receptie sala fitness
consultanta
statia CFR craiova
statie CFR Constanta
statia CFR cluj-napoca
altele
cv
linkedin
fotografie
a7 arhitectura
a7 construct
a7 mobilier
blog
architizer
pinterest
contact
Comment
Subscribe
Subscribed
george tătulea arhitect
Sign me up
Already have a WordPress.com account?
Log in now.
george tătulea arhitect
Subscribe
Subscribed
Sign up
Log in
Copy shortlink
Report this content
View post in Reader
Manage subscriptions
Collapse this bar